产品介绍

YQ98003过滤活塞式遥控浮球阀

上海高乔阀门厂YQ98003过滤活塞式遥控浮球阀 详细介绍:

YQ98003过滤活塞式遥控浮球阀』供应商,上海高乔阀门厂供应的【活塞式遥控浮球阀】质量先行、价格合理、售后服务较完善。『YQ98003过滤活塞式遥控浮球阀』适用于轻重工业及楼宇管道。流体前进的道路上,让上海高乔阀门厂为您排忧解难!【水力控制阀】可应用于:化工、石化、石油、造纸、采矿、电力、液化气、食品、制药、给排水、市政、机械设备配套、电子工业,城建等领域。

 

产品名称

YQ98003过滤活塞式遥控浮球阀

产品型号

YQ98003

公称通径

DN50-DN400mm

压力范围

1.6-2.5MPa

阀体材质

铸铁、球墨铸铁、铸钢、不锈钢

 

上海高乔阀门厂YQ98003过滤活塞式遥控浮球阀 产品概述:

YQ98003过滤活塞式遥控浮球阀主要安装与水池或高架的进水口处,当水位达到设定的高度时,YQ98003过滤活塞式遥控浮球阀主阀由浮球导阀控制关闭进水口停止供水;当水位下降后,YQ98003过滤活塞式遥控浮球阀主阀由浮球导阀控制打开进水口向水池注水,实现自动补水。液位控制精确,不受水压干扰;活塞式遥控浮球阀可随水池的高度及使用空间任意位置安装,使用寿命长。活塞式阀门性能可靠,强度高、动作平稳。关闭严密可靠,YQ98003过滤活塞式遥控浮球阀阀体采用流线型设计,流体阻力小,流量大。

 

上海高乔阀门厂YQ98003过滤活塞式遥控浮球阀 原理作用:

水力控制阀是以管道介质压力为动力,进行启闭、调节的阀门。它由一个主阀和附设的导管、针阀、球阀和压力表等组成,根据使用的目的、功能场所的不同,可演变成遥控浮球阀、减压阀、缓闭止回阀、流量控制器、泄压阀、水泵控制阀、水力电动控制阀、紧急关闭阀。水力控制阀按结构可分为隔膜型和活塞型两类。

 

上海高乔阀门厂YQ98003过滤活塞式遥控浮球阀 性能特点:

YQ98003过滤活塞式遥控浮球阀非传统的浮球控制、安全可靠;
YQ98003过滤活塞式遥控浮球阀必须安装在水池外,便于调节各维护,避免进入水池操作的危险性;
③弹性软密封,确保密封可靠,滴水不漏;
④Y型宽体阀腔,流阻小,抗汽蚀性强,无噪音;
YQ98003过滤活塞式遥控浮球阀自带过滤装置及防震压力表,使安装尺寸缩短约40%,减少占用空间,节省投资成本,
YQ98003过滤活塞式遥控浮球阀内外表面均喷涂层,确保产品的防腐及安全性。

 

上海高乔阀门厂YQ98003过滤活塞式遥控浮球阀 技术参数:

公称通径

DN50-DN400

公称压力

1.0Mpa

1.6Mpa

2.5Mpa

适用温度

0℃~100℃

壳体试验压力

1.5Mpa

2.4Mpa

3.75Mpa

密封试验压力

1.1Mpa

1.76Mpa

2.75Mpa

最低动作压力

P1≥0.07MPa

法兰长度标准

GB/T 17241.6

试验压力标准

GB/T 13927

 

上海高乔阀门厂YQ98003过滤活塞式遥控浮球阀 零部件材质表:

阀体

灰铸铁/球墨铸铁/铸钢/不锈钢

阀盖

灰铸铁/球墨铸铁/铸钢/不锈钢

弹簧

弹簧钢/不锈钢

阀杆

2Cr13

膜片

丁腈尼龙强化橡胶/三元乙丙尼龙强化橡胶

阀座

铜合金/不锈钢

阀盘

灰铸铁/球墨铸铁/铸钢/不锈钢/铜

过滤网

不锈钢

O型密封圈

丁腈橡胶/三元乙丙橡胶

O型圈压板

灰铸铁/球墨铸铁/铸钢/不锈钢

 

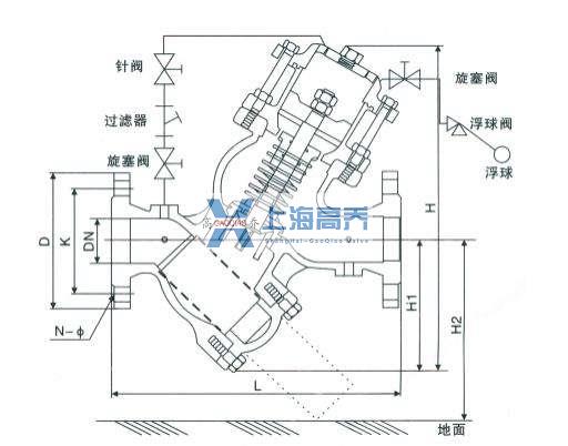
上海高乔阀门厂YQ98003过滤活塞式遥控浮球阀 产品结构图及外形尺寸:

YQ98003过滤活塞式遥控浮球阀结构图.jpg 

DN

50

65

80

100

125

150

200

250

300

350

400

L

250

280

335

380

425

480

750

660

740

810

860

 

上海高乔阀门厂YQ98003过滤活塞式遥控浮球阀 安装示意图:

YQ98003过滤活塞式遥控浮球阀安装.jpg 

 

To Top